This product has acquired the relevant product qualification(s)/license(s) of certain applicable country/countries.
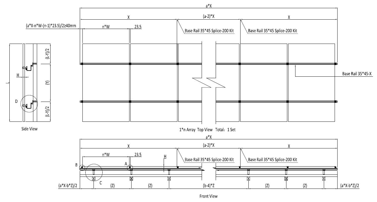
| Application | Tile Roof Module Tile Roof Hook |
| Product Name | Stainless Steel Roof Hook |
| Material | SUS304 |
| Surface Treatment | Normal treatment |
| Certificate | CE/SGS/TUV/ISO etc. |
| Standard | AS/NZS1170 & JISC8955-2017 |
| Manufacturer | Own Solar Structure Factory |

Tile Roof Hook offers perfect solution for installation on tile roofing. Systems are fully compliant with international standards on wind & snow load, making it suitable for a wide variety of climatic zones.
1.What is your pv panels dimension? _____mm Length x_____mm Width x____mm Thickness
2. how many panels will be mounted for the the project? _______Nos.
3.What is your planned panel layout?
(OPTIONAL/RECOMMEND please advise place image and size) ________Nos. in a row × ________Nos. in a column
4.How is weather there, such as wind speed and snow load? ___m/s wind speed and____KN/m2 snow load
We are one of the vendors of Clenergy who is a listed company, in the while, we OEM for many domestic companies. With cost advantage and service awareness, we ensure your products from materials to finished products. We offer customized solar mounting system solutions to meet your requirements.
We are one of the vendors of Clenergy who is a listed company, in the while, we OEM for many domestic companies. With cost advantage and service awareness, we ensure your products from materials to finished products. We offer customized solar mounting system solutions to meet your requirements.
It is a better way that have our engineers work out a solution according to the local geological conditions, if the wind speed more than 60m/s, or snow load over 1.5 Kn/㎡. Our engineers are experienced enough to deal with all kinds of severe weather.
We recommend the bolt made of 304 stainless steel.
2-3 weeks for regular orders. Customized orders depend on the quantity and agreement.
Negotiable: T/T, L/C, D/P, D/A, OA, Western Union.
Yes, We do, We are strength lies in having own factory and years of experience in producing galvanized-steel,aluminum structures and ODM of solar mounting structures,being professional in the whole quality control,inspection process and a dedicated team of engineers experienced in designing solar mounting structures.